5950 Macdonald St, Vancouver, BC, MLS® R3062097

$4,998,000
Est. Mortgage /mo

$4,998,000
Est. Mortgage /mo
Dan Marusin
Dan Marusin
Renanza Realty
778-918-5990
Award-Winning REALTOR® with 11+ Years of Experience Serving Greater Vancouver
Go See This Home Now
7 Beds
4 Baths
2 Stories
lot 16023 sqft
4968 sqft
1927 built
Show more info
Photos
Map
Street view
Schools
Crime
Commute
Shop & Eat

5950 Macdonald St, Vancouver, BC | MLS® R3062097 Property Details

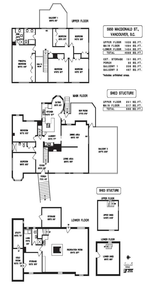
This spacious 7-bedroom, 4-bathroom home sits on a massive 16,023 sqft. lot in desirable Kerrisdale. The 4,968 sqft residence is prime for a renovation. This solid family home was well constructed in the day with solid bones. . The main level features gracious principal rooms, an oak kitchen with newer hood fan, eating nook, and bright sunroom. Upstairs has four large bedrooms including a primary bedroom retreat with ensuite bathroom. The basement has a fun recreation space with bar area, storage & laundry. Enjoy the outdoors in this sprawling backyard with sun deck and two-level shed. The location provides convenient access to shops in Kerrisdale, Point Grey Secondary, and UBC. Fantastic opportunity to create your dream home in one of Vancouver's most sought-after enclaves.

General Info

Price $4,998,000
Total Bedrooms 7
Total Bathrooms 4
Half Bathrooms 0
Floor Area Total (sqft) 4968
Lot Size 16023
Lot Size Depth Feet
Lot Size Frontage 100.9
Basement Finished
Basement Features BasementFeatures

Property Metrics

Year Built 1927
Age Of Building 98
Building Type Single Family Residence
Property Type Residential
Stories 2
Appliances Included Washer/Dryer, Dishwasher, Refrigerator, Stove
Building Features BuildingFeatures
Structures Residential Detached

Additional Details

MLS® # R3062097
Area Vancouver West
Neighbourhood Kerrisdale
City Vancouver
Gross Taxes $24,396.7
Ownership Type Freehold NonStrata
Maintenance Fee -
Community Features Shopping Nearby

Heating & Cooling

Fireplace 2
Heating Type Baseboard, Electric

Utilities

Utility Type Electricity Connected, Natural Gas Connected, Water Connected
Utility Sewer Public Sewer, Sanitary Sewer
Water (WaterSource) Public

Parking

Parking Type Carport Multiple, Front Access
Total Parking Spaces 2

🔒 Join or Sign In • Real estate boards need a verified account to see Property data

Strata Restrictions -
Rental Restrictions -
Zoning R1-1
Rental Suites -
Laundry In Unit
# of Kitchens 1
Flooring Hardwood, Tile, Carpet
Foundation Concrete Perimeter
Locker -
View Description -
Units In Development -
Exterior Features Balcony
Sewer Public Sewer, Sanitary Sewer
Roof Asphalt

Property History

🔒 Join or Sign In • Real estate boards need a verified account to see Property data

Status Date Price
Show more

Listed by: WESTSIDE Tom Gradecak Realty

NOTE: This representation is based in whole or in part on data generated by the Chilliwack & District Real Estate Board, Fraser Valley Real Estate Board or Greater Vancouver REALTORS® which assumes no responsibility for its accuracy.

Neighborhood Info

Public Schools

Elementary
Kerrisdale Elementary School
Above Average
0.66 km
7.6/10
Secondary
Point Grey Secondary School
1.16 km

Information includes BC Government Open License data; school details change often and are offered solely as general guidance.

Private Schools

Elementary, Secondary
Crofton House
0.78 km
Elementary, Secondary
Crofton House
0.78 km

Closest Transit

Translink
Eastbound W 41 Ave @ Macdonald St
0.26 km
Skytrain
Skytrain @ Oakridge-41St Stn
3.69 km

Noise/ Power Lines

Road/Hwy Noise
Possible
Railway/Sky train Noise
Unlikely
Airport/Port Noise
Unlikely
Close to major Power Lines
Unlikely

Other

Agricultural Land Reserve (ALR)
Unlikely
Flood Area
Unlikely
Close to Cemeteries
Unlikely

Welcome to 5950 Macdonald Street, a stunning property in the heart of Vancouver's Kerrisdale neighborhood, listed as MLS® R3062097.

As we step into this beautiful home, you'll be surrounded by the charm of Kerrisdale, a community that's perfect for families and those seeking a relaxed, small-town feel within the city. Let's explore the amenities and characteristics that make this neighborhood so special.

Education:

Kerrisdale Elementary School, rated 7.6/10, is just a 0.66 km stroll from 5950 Macdonald Street, providing a top-notch education for the young ones. Point Grey Secondary School, located 1.16 km from the property, is another excellent option for students. For those seeking an independent education, Crofton House Elementary and Secondary schools are conveniently located just 0.78 km from the property.

Safety and Crime Rates:

According to the latest crime data from Statistics Canada (2020), this neighborhood boasts an Average crime rate of 7,470.82, which is comparable to other Canadian cities. The overall rate of property crimes is Above Average, with a rating of 5,020.27. However, the violent crime rate is Below Average at 1,311.69. Rest assured, this community prioritizes safety and security.

Demographics and Lifestyle:

Kerrisdale is a vibrant neighborhood with a diverse population. Approximately 48.2% of residents hold a university certificate or degree, which is High compared to other BC neighborhoods. Moreover, 8.6% of the population has no certificate or degree, which is Low compared to the average in BC. The median household income is $60,544, which is Below Average compared to the British Columbia average. Unemployment rates are Average at 8.5%.

Transit and Commuting:

Getting around is a breeze in Kerrisdale, with the Eastbound W 41 Ave @ Macdonald St bus station just 0.26 km away from 5950 Macdonald Street. Many residents use Public Transport, with 28.9% of the population relying on it, while 59% use Cars, and 4.3% use Bicycles.

Community and Amenities:

This neighborhood boasts a mix of young families, couples, and singles, with 63.2% of families having children, which is Above Average. The community is also known for its small-town feel, with a strong sense of belonging among residents. The average age of the population is 43.3, which is Above Average compared to other BC cities.

Real Estate and Housing:

The average value of dwellings in Kerrisdale is $2,450,291, which is High compared to other areas in British Columbia. Average owner payments are $2,031, while tenants pay $1,422 on average. Approximately 49.3% of the population are renters, which is High compared to other BC cities and areas.

Language and Culture:

The neighborhood is predominantly English-speaking, with 83.3% of residents speaking only English, which is Below Average. However, 7.4% of the population speaks neither English nor French, which is High compared to other BC cities.

Experience the Best of Kerrisdale:

5950 Macdonald Street is the perfect opportunity to experience the unique charm of Kerrisdale. With its excellent schools, Average crime rates, and diverse community, this neighborhood offers a relaxed, small-town feel within the city. Don't miss out on this incredible chance to call Kerrisdale home.

Contact me today to schedule a viewing of MLS® R3062097, and let's explore the possibilities together!

Local Info

Calculate your monthly mortgage payments

/month
Principal & Interest
Property Taxes $202
Maintenance fee 0
All figures are informational estimates by Estateblock.com; actual mortgage payments and insurance rates vary by many factors.

Cash Flow Analysis

/month
Mortgage Payment $3201
Monthly Payment $3802
Break Even Down Payment 0%
All figures are informational estimates by Estateblock.com; actual mortgage payments and insurance rates vary by many factors.

Price Evaluation Chart

Filter
Beds Home Types Square Feet Lot Size Year Built
This Home $4,998,000
Vancouver No comparables
Kerrisdale No comparables
Data is based on list prices of similar active listings. This representation is based in whole or in part on data generated by the Chilliwack & District Real Estate Board, Fraser Valley Real Estate Board or Real Estate Board of Greater Vancouver which assumes no responsibility for its accuracy

Listing Price Comparision

This house $1,400,000
Surrey

No comparables

Fleetwood Tynehead $1,399,000 -6.38%
Data is based on list prices of similar active listings. This representation is based in whole or in part on data generated by the Chilliwack & District Real Estate Board, Fraser Valley Real Estate Board or Real Estate Board of Greater Vancouver which assumes no responsibility for its accuracy
Dan Marusin
Dan Marusin
Renanza Realty
778-918-5990
Award-Winning REALTOR® with 11+ Years of Experience Serving Greater Vancouver

Earn Cashback

Potential Cashback for this listing if you buy with us

$0
out of $29,764
0 of 17 missions
(0.0% out of 100%)

Login to track your cashback progress

Sign up on Estateblock.com

$1,488 / 5%

Use the “Hot Deal” module on our website

$595 / 2%

Sign up for our Newsletter

$298 / 1%

Create a saved search on Estateblock.com

$595 / 2%

Book a Property Showing with us

$595 / 2%

Get a mortgage through our recommended broker

$2,083 / 7%

Use our recommended insurance provider

$595 / 2%

Use our recommended notary for closing

$595 / 2%

Sign an Exclusive Buyer’s Agency Agreement with us

$2,083 / 7%

Share Estateblock.com on social media with a short intro

$893 / 3%

Refer a friend who successfully buys or sells with us

$7,441 / 25%

Sell your home with us2

$7,441 / 25%

Leave a Public Review in Google

$2,083 / 7%

Follow us on Insta or FB and tag us in a post

$893 / 3%

Create a short video testimonial after closing

$893 / 3%

Leave a Facebook review on our page

$595 / 2%

Talk with one of our mortgage brokers

$595 / 2%

Similar nearby listings

1529 Western Crescent, Vancouver, BC
$8,699,000

1529 Western Crescent, Vancouver, BC

6 Beds
4 Baths
4109 sqft
1938 built
MLS® R2992938 , Sutton Group - 1st West Realty
1625 Marpole Avenue, Vancouver, BC
$6,680,000

1625 Marpole Avenue, Vancouver, BC

5 Beds
5 Baths
5055 sqft
1926 built
MLS® R3010062 , Dracco Pacific Realty & Dracco Pacific Realty

Similar Sold listings

🔒 Join or Sign In • Real estate boards need a verified account to see photos & sold data

6037 Chancellor Boulevard, Vancouver, BC
Sold
$4,980,000

6037 Chancellor Boulevard, Vancouver, BC

5 Beds
3 Baths
5007 sqft
1930 built
MLS® R2953195 , Sutton Group-West Coast Realty & Sutton Group-West Coast Realty

Book a tour

Please complete the form. We will the arrangements and give you a call, typically within 1-2 hours. Or Call Us 778-918-5990
Thank you Your message has been sent
Go See This Home Now