5948 Matsqui St, Chilliwack, BC, MLS® R3034371

$1,239,900
Est. Mortgage /mo

OPEN HOUSE

$1,239,900
$1,269,900
Est. Mortgage /mo
Dan Marusin
Dan Marusin
Renanza Realty
778-918-5990
Award-Winning REALTOR® with 11+ Years of Experience Serving Greater Vancouver
Go See This Home Now
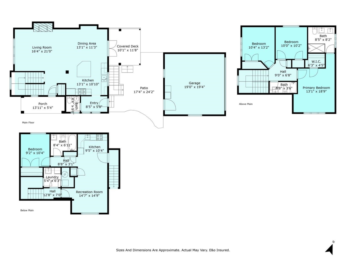
4 Beds
4 Baths
2 Stories
lot 3920 sqft
2143 sqft
2009 built
Show more info
Photos
Map
Street view
Schools
Crime
Commute
Shop & Eat

5948 Matsqui St, Chilliwack, BC | MLS® R3034371 Property Details

Welcome to Garrison Crossing! This beautifully maintained corner lot home with a detached garage and future coach home potential offers a 1-bedroom LEGAL basement suite—perfect for rental income or multi-generational living. Thoughtfully updated inside and out, this 4bdrm, 4bath home features stunning curb appeal with professional landscaping, updated exterior stonework, water features, a retractable patio screen, and mature fruit trees. Inside, you’ll find fresh paint throughout, engineered walnut hardwood floors, quartz countertops, crown moulding, and even a garburator—blending comfort, style, and functionality. Call to view today!

Open houses

25 Oct, 2025 (01:00 PM to 03:00 PM)

General Info

Price $1,239,900
Total Bedrooms 4
Total Bathrooms 3
Half Bathrooms 1
Floor Area Total (sqft) 2143
Lot Size 3920.4
Lot Size Depth Feet
Lot Size Frontage 63.6
Basement Full, Finished, Exterior Entry
Basement Features BasementFeatures

Property Metrics

Year Built 2009
Age Of Building 16
Building Type Single Family Residence
Property Type Residential
Stories 2
Appliances Included Washer/Dryer, Dishwasher, Refrigerator, Stove
Building Features BuildingFeatures
Structures Residential Detached

Additional Details

MLS® # R3034371
Area Sardis
Neighbourhood Garrison Crossing
City Chilliwack
Gross Taxes $4,628.96
Ownership Type Freehold NonStrata
Maintenance Fee -

Heating & Cooling

Fireplace 1
Heating Type Baseboard, Forced Air
Cooling Air Conditioning

Utilities

Utility Type Electricity Connected, Natural Gas Connected, Water Connected
Utility Sewer Public Sewer, Sanitary Sewer, Storm Sewer
Water (WaterSource) Public

Parking

Parking Type Detached, Lane Access
Total Parking Spaces 5

🔒 Join or Sign In • Real estate boards need a verified account to see Property data

Strata Restrictions -
Rental Restrictions -
Zoning CD-9
Rental Suites Legal Suite
# of Kitchens 2
Flooring Hardwood, Mixed
Foundation Concrete Perimeter
Locker -
View 1
View Description MOUNTAINS
Units In Development -
Exterior Features Balcony
Sewer Public Sewer, Sanitary Sewer, Storm Sewer
Roof Asphalt

Property History

🔒 Join or Sign In • Real estate boards need a verified account to see Property data

Status Date Price
Show more

Listed by:

NOTE: This representation is based in whole or in part on data generated by the Chilliwack & District Real Estate Board, Fraser Valley Real Estate Board or Greater Vancouver REALTORS® which assumes no responsibility for its accuracy.

Neighborhood Info

Private Schools

Elementary
Cascade Christian School
5.22 km
Elementary, Secondary
Highroad Academy
6.46 km

Closest Transit

Chilliwack
Watson at Arlington (EB)
0.21 km
Skytrain
West Coast Express @ Mission City Station
24.43 km

Noise/ Power Lines

Road/Hwy Noise
Possible
Railway/Sky train Noise
Unlikely
Airport/Port Noise
Unlikely
Close to major Power Lines
Unlikely

Other

Agricultural Land Reserve (ALR)
Unlikely
Flood Area
Unlikely
Close to Cemeteries
Unlikely

Welcome to 5948 Matsqui Street, a charming home in the heart of Chilliwack, BC

As we step into this beautiful home, I'm excited to share with you the wonderful community that surrounds it. Let's start with the schools, shall we? The closest Elementary independent school to this home is Cascade Christian School, located a short 5.22 km away. While it may not have a rating, I've had the pleasure of working with many families who appreciate the school's unique approach to education.

Just down the road, you'll find Highroad Academy, a highly-rated Secondary independent school with a 7/10 rating. It's a 6.46 km drive from this lovely home, and I've seen many students thrive in its supportive environment.

Now, let's talk about transportation. The closest Bus station is Watson at Arlington (EB), just 0.21 km away from this listing with MLS® R3034371. You'll appreciate the convenience of having public transportation at your doorstep.

A thriving community

Did you know that 20% of people in this neighbourhood have a university certificate or degree? That's Average compared to other BC neighbourhoods. However, I've noticed that many residents appreciate the strong sense of community here, with 14.8% of the population having no certificate or degree. It's a great place to connect with like-minded individuals.

Median income and household dynamics

The median household income in this area is $68,787, which is Average compared to the British Columbia average. I've worked with many families who appreciate the stability and security that comes with this income level. Meanwhile, the median personal income is $35,420, also Average in comparison. It's worth noting that 75.6% of households in this area have a mortgage, which is considered High.

Unemployment and growth

The unemployment rate in this area is 7.4%, which is Average in comparison to other province neighbourhoods. However, I've seen the community grow and thrive over the years, with a 14% population change between 2011 and 2016. That's High compared to the average growth rate of this region.

Populations and demographics

The population density per square kilometre in this community is 4,029.2, which is High. I've noticed that many residents appreciate the urban feel of the area, with a mix of families and young professionals. The average size of families here is 2.9, which is Average in comparison to the whole region. Interestingly, 63.5% of families in this area have children, making it an Above Average number.

Average age and value of dwellings

The average age of the population in this area is 36.9, which is Low compared to other BC cities. Meanwhile, the average value of dwellings is $383,538, which is Average compared to other areas in British Columbia.

Owner and tenant payments

The average owner payments in this area are Average, with homeowners spending $1,317 on their dwellings. Tenants, on the other hand, pay an average of $1,053, which is also Average.

Language and transportation habits

Interestingly, 35.7% of the population in this area are renters, which is Above Average compared to other BC cities and areas. As for language, 94.1% of residents speak English only, making it an Above Average number. Meanwhile, 2.3% of the population uses public transport, which is Low. However, 90% of residents use cars, making it an Above Average number.

A home to call your own

If you're looking for a charming home in a thriving community, look no further than 5948 Matsqui Street, Chilliwack, BC, MLS® R3034371. With its convenient location, excellent schools, and strong sense of community, this home is sure to delight. Contact me today to schedule a viewing and make this property your dream home!

Local Info

Calculate your monthly mortgage payments

/month
Principal & Interest
Property Taxes $202
Maintenance fee 0
All figures are informational estimates by Estateblock.com; actual mortgage payments and insurance rates vary by many factors.

Cash Flow Analysis

/month
Mortgage Payment $3201
Monthly Payment $3802
Break Even Down Payment 0%
All figures are informational estimates by Estateblock.com; actual mortgage payments and insurance rates vary by many factors.

Price Evaluation Chart

Filter
Beds Home Types Square Feet Lot Size Year Built
This Home $1,239,900
Chilliwack No comparables
Garrison Crossing No comparables
Data is based on list prices of similar active listings. This representation is based in whole or in part on data generated by the Chilliwack & District Real Estate Board, Fraser Valley Real Estate Board or Real Estate Board of Greater Vancouver which assumes no responsibility for its accuracy

Listing Price Comparision

This house $1,400,000
Surrey

No comparables

Fleetwood Tynehead $1,399,000 -6.38%
Data is based on list prices of similar active listings. This representation is based in whole or in part on data generated by the Chilliwack & District Real Estate Board, Fraser Valley Real Estate Board or Real Estate Board of Greater Vancouver which assumes no responsibility for its accuracy
Dan Marusin
Dan Marusin
Renanza Realty
778-918-5990
Award-Winning REALTOR® with 11+ Years of Experience Serving Greater Vancouver

Earn Cashback

Potential Cashback for this listing if you buy with us

$0
out of $8,154
0 of 17 missions
(0.0% out of 100%)

Login to track your cashback progress

Sign up on Estateblock.com

$408 / 5%

Use the “Hot Deal” module on our website

$163 / 2%

Sign up for our Newsletter

$82 / 1%

Create a saved search on Estateblock.com

$163 / 2%

Book a Property Showing with us

$163 / 2%

Get a mortgage through our recommended broker

$571 / 7%

Use our recommended insurance provider

$163 / 2%

Use our recommended notary for closing

$163 / 2%

Sign an Exclusive Buyer’s Agency Agreement with us

$571 / 7%

Share Estateblock.com on social media with a short intro

$245 / 3%

Refer a friend who successfully buys or sells with us

$2,039 / 25%

Sell your home with us2

$2,039 / 25%

Leave a Public Review in Google

$571 / 7%

Follow us on Insta or FB and tag us in a post

$245 / 3%

Create a short video testimonial after closing

$245 / 3%

Leave a Facebook review on our page

$163 / 2%

Talk with one of our mortgage brokers

$163 / 2%

Similar nearby listings

46151 Third Avenue, Chilliwack, BC
$899,900

46151 Third Avenue, Chilliwack, BC

6 Beds
3 Baths
2431 sqft
2007 built
MLS® R3044224 , Century 21 Creekside Realty (Luckakuck) & Century 21 Creekside Realty (Luckakuck)
46205 Stoneview Drive, Chilliwack, BC
$1,025,000

46205 Stoneview Drive, Chilliwack, BC

5 Beds
3 Baths
2502 sqft
2006 built
MLS® R3023637 , Century 21 Coastal Realty Ltd.
4886 Teskey Road, Chilliwack, BC
NEW Open House
$799,000

4886 Teskey Road, Chilliwack, BC

5 Beds
3 Baths
2432 sqft
2003 built
MLS® R3068424 , Angell, Hasman & Associates Realty Ltd.
4688 Teskey Road, Chilliwack, BC
Open House
$979,000

4688 Teskey Road, Chilliwack, BC

4 Beds
3 Baths
2500 sqft
2007 built
MLS® R3052811 , RE/MAX City Realty
5359 Teskey Road, Chilliwack, BC
$899,900

5359 Teskey Road, Chilliwack, BC

5 Beds
3 Baths
2452 sqft
2003 built
MLS® R3042317 , Pathway Executives Realty Inc (Yale Rd) & Pathway Executives Realty Inc (Yale Rd)
46723 Hudson Road, Chilliwack, BC
$924,900

46723 Hudson Road, Chilliwack, BC

4 Beds
3 Baths
2416 sqft
2008 built
MLS® R3045589 , Advantage Property Management
9286 Sitka Place, Chilliwack, BC
Open House
$974,900

9286 Sitka Place, Chilliwack, BC

4 Beds
3 Baths
2138 sqft
2021 built
MLS® R3043260 , RE/MAX Nyda Realty Inc.
B 45658 Lewis Avenue, Chilliwack, BC
NEW Open House
$819,900

B 45658 Lewis Avenue, Chilliwack, BC

3 Beds
3 Baths
2253 sqft
2000 built
MLS® R3069986 , RE/MAX Nyda Realty Inc. (Vedder North)
4 6262 Rexford Drive, Chilliwack, BC
$1,039,900

4 6262 Rexford Drive, Chilliwack, BC

4 Beds
3 Baths
2305 sqft
2019 built
MLS® R3061764 , Team 3000 Realty Ltd.
10249 Manor Drive, Chilliwack, BC
NEW
$994,999

10249 Manor Drive, Chilliwack, BC

4 Beds
3 Baths
2060 sqft
2016 built
MLS® R3064605 , RE/MAX Nyda Realty Inc.

Similar Sold listings

🔒 Join or Sign In • Real estate boards need a verified account to see photos & sold data

46338 Valleyview Road, Chilliwack, BC
Sold
$899,900

46338 Valleyview Road, Chilliwack, BC

4 Beds
3 Baths
2248 sqft
2001 built
MLS® R3031727 , Royal Lepage Wheeler Cheam
4772 Teskey Road, Chilliwack, BC
Sold
$1,075,000

4772 Teskey Road, Chilliwack, BC

4 Beds
3 Baths
2560 sqft
2018 built
MLS® R2874106 , RE/MAX Nyda Realty Inc.
46348 Maple Avenue, Chilliwack, BC
Sold
$999,000

46348 Maple Avenue, Chilliwack, BC

5 Beds
3 Baths
2470 sqft
2023 built
MLS® R2798919 , Royal LePage Fairstone Realty. & Royal LePage Global Force Realty
46382 Uplands Road, Chilliwack, BC
Sold
$1,079,900

46382 Uplands Road, Chilliwack, BC

5 Beds
3 Baths
2336 sqft
2020 built
MLS® R3004682 , Century 21 Creekside Realty (Luckakuck)
44422 Freshwater Drive, Chilliwack, BC
Sold
$1,289,900

44422 Freshwater Drive, Chilliwack, BC

5 Beds
4 Baths
3041 sqft
2018 built
MLS® R2961556 , Century 21 Creekside Realty (Luckakuck)
46632 Uplands Road, Chilliwack, BC
Sold
$979,000

46632 Uplands Road, Chilliwack, BC

5 Beds
3 Baths
2527 sqft
2014 built
MLS® R2860273 , Advantage Property Management
5073 Teskey Road, Chilliwack, BC
Sold
$925,000

5073 Teskey Road, Chilliwack, BC

4 Beds
4 Baths
2603 sqft
2004 built
MLS® R2866401 , Century 21 Creekside Realty
5998 Matsqui Street, Chilliwack, BC
Sold
$1,179,900

5998 Matsqui Street, Chilliwack, BC

5 Beds
4 Baths
2623 sqft
2011 built
MLS® R2966528 , Royal Lepage Wheeler Cheam
5910 Coquitlam Street, Chilliwack, BC
Sold
$955,000

5910 Coquitlam Street, Chilliwack, BC

3 Beds
2 Baths
1703 sqft
2005 built
MLS® R2880178 , YPA Your Property Agent
6202 Rexford Drive, Chilliwack, BC
Sold
$1,199,900

6202 Rexford Drive, Chilliwack, BC

6 Beds
3 Baths
2573 sqft
2015 built
MLS® R3004636 , Pathway Executives Realty Inc.

Book a tour

Please complete the form. We will the arrangements and give you a call, typically within 1-2 hours. Or Call Us 778-918-5990
Thank you Your message has been sent
Go See This Home Now