3979 W 33rd Ave, Vancouver, BC, MLS® R3067156

$4,098,000
Est. Mortgage /mo

OPEN HOUSE

$4,098,000
Est. Mortgage /mo
Dan Marusin
Dan Marusin
Renanza Realty
778-918-5990
Award-Winning REALTOR® with 11+ Years of Experience Serving Greater Vancouver
Go See This Home Now
7 Beds
4 Baths
2 Stories
lot 6485 sqft
4084 sqft
1987 built
Show more info
Photos
Map
Street view
Schools
Crime
Commute
Shop & Eat

3979 W 33rd Ave, Vancouver, BC | MLS® R3067156 Property Details

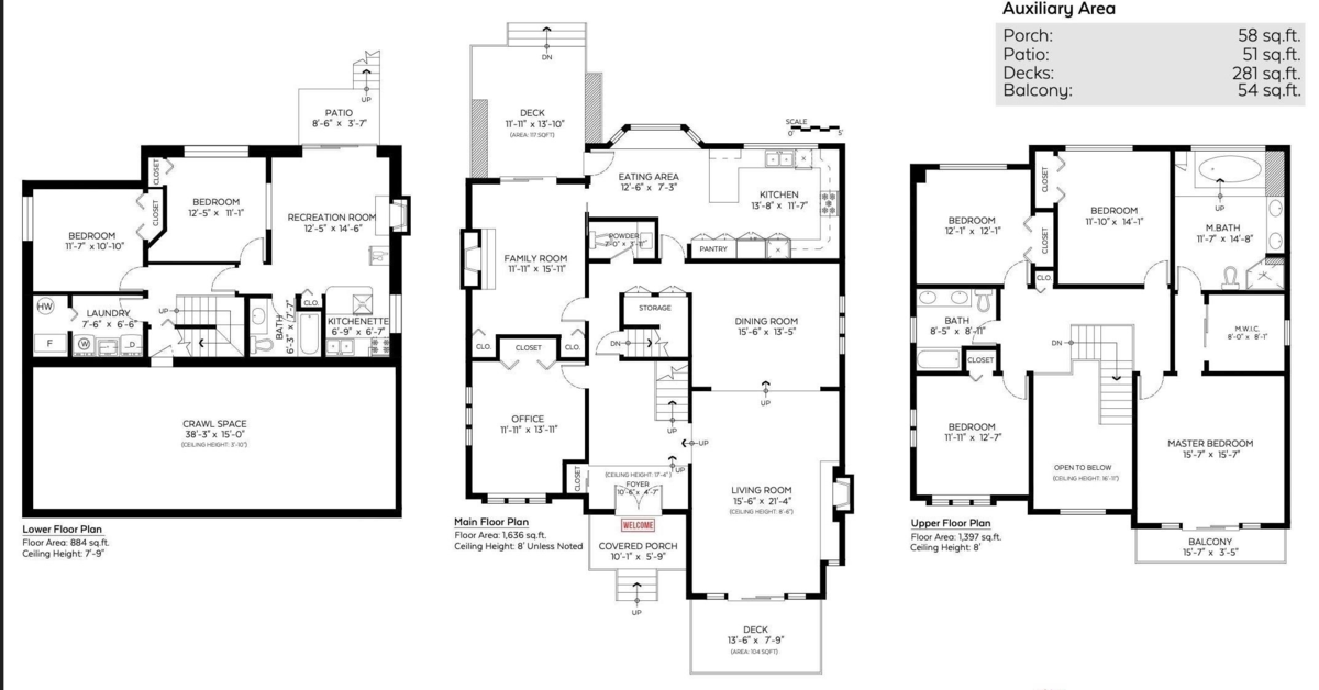
Prime Dunbar location on a 49.5 x 131 RS1-1 lot with nearly 4,084 sqft of living space. This well-kept 7-bedroom, 4-bath family home features spacious principal rooms an updated kitchen, and a private south-facing backyard. Upper floor offers 5 large bedrooms; lower level includes a bright 2-bed suite with separate entrance. Quiet tree-lined street close to Dunbar shops, parks, community centre, and top schools Lord Byng & Kitchener. A rare, move-in-ready home on one of Dunbar's best blocks. Open House Nov15-16 Sat/Sun 2-4PM.

Open houses

30 Nov, 2025 (02:00 PM to 04:00 PM)

30 Nov, 2025 (02:15 PM to 04:00 PM)

General Info

Price $4,098,000
Total Bedrooms 7
Total Bathrooms 3
Half Bathrooms 1
Floor Area Total (sqft) 4084
Lot Size 6485
Lot Size Depth Feet
Lot Size Frontage 49.5
Basement None
Basement Features BasementFeatures

Property Metrics

Year Built 1987
Age Of Building 38
Building Type Single Family Residence
Property Type Residential
Stories 2
Appliances Included Washer/Dryer, Dishwasher, Refrigerator, Stove
Building Features BuildingFeatures
Structures Residential Detached

Additional Details

MLS® # R3067156
Area Vancouver West
Neighbourhood Dunbar
City Vancouver
Gross Taxes $18,529.8
Ownership Type Freehold NonStrata
Maintenance Fee -

Heating & Cooling

Fireplace 2
Heating Type Hot Water

Utilities

Utility Type Community, Electricity Connected, Natural Gas Connected
Utility Sewer Public Sewer
Water (WaterSource) Public

Parking

Parking Type Garage Double, Lane Access
Total Parking Spaces 2

🔒 Join or Sign In • Real estate boards need a verified account to see Property data

Strata Restrictions -
Rental Restrictions -
Zoning R1-1
Rental Suites None
# of Kitchens 2
Flooring Hardwood
Foundation Concrete Perimeter
Locker -
View Description -
Units In Development -
Sewer Public Sewer
Roof Other

Property History

🔒 Join or Sign In • Real estate boards need a verified account to see Property data

Status Date Price
Show more

Listed by: Parallel 49 Realty

NOTE: This representation is based in whole or in part on data generated by the Chilliwack & District Real Estate Board, Fraser Valley Real Estate Board or Greater Vancouver REALTORS® which assumes no responsibility for its accuracy.

Neighborhood Info

Public Schools

Secondary
Lord Byng Secondary School
1.77 km
Elementary
Southlands Elementary School
Average
0.61 km
5.7/10

Information includes BC Government Open License data; school details change often and are offered solely as general guidance.

Private Schools

Elementary
Immaculate Conception School
0.66 km
Elementary, Secondary
St George's School
0.71 km

Closest Transit

Translink
Southbound Dunbar St @ W 33 Ave
0.56 km
Skytrain
Skytrain @ Yvr-Airport Stn
5.50 km

Noise/ Power Lines

Road/Hwy Noise
Unlikely
Railway/Sky train Noise
Unlikely
Airport/Port Noise
Unlikely
Close to major Power Lines
Unlikely

Other

Agricultural Land Reserve (ALR)
Unlikely
Flood Area
Unlikely
Close to Cemeteries
Unlikely

Welcome to 3979 W 33rd Avenue, Vancouver, BC!

As we walk through the charming streets of Dunbar, you'll notice the perfect blend of community spirit and urban convenience. Located in the heart of Vancouver, this stunning property with MLS® R3067156 is a true gem.

Education

When it comes to education, families have a wealth of options nearby.

Southlands Elementary School

, with a rating of 5.7/10, is just a short 0.61 km away from our property. This highly-rated school is a popular choice among parents and offers a nurturing environment for young learners. Additionally,

Lord Byng Secondary School

, with a rating of No Rating, is located 1.77 km from our property, providing students with access to a wide range of academic and extracurricular programs. For families seeking a private education,

Immaculate Conception School

, with a rating of 8.8/10, is just 0.66 km away, while

St George's School

, with a rating of 10/10, is a mere 0.71 km from our doorstep.

Safety

When it comes to safety, Vancouver is a city that takes pride in its community. According to Statistics Canada's 2020 report, our neighborhood has an overall crime rate of 7,470.82, which is Average compared to other Canadian cities. The year-over-year change in the total crime rate is a reassuring -14.94%. In terms of specific types of crime,

drug crime rate

is Average, with a rating of 229.49, while

property crimes

are Above Average, with a rating of 5,020.27.

Demographics

Our neighborhood is a vibrant and diverse community, with a median household income of $116,395, which is High compared to the British Columbia average. The median personal income is also High, at $42,317. With 40.4% of households owning their homes, this is a community that values stability and security. The unemployment rate in our area is a low 6.6%, making it an attractive option for those looking to start a new career or business.

Transit

Getting around Vancouver has never been easier. Our property is close to the

Southbound Dunbar St @ W 33 Ave

bus station, just 0.56 km away. Whether you prefer to drive, take public transportation, or walk or bike, our neighborhood has something for everyone.

Lifestyle Amenities

Our community is surrounded by an abundance of lifestyle amenities, including parks, beaches, trails, dog parks, shopping malls, grocery stores, restaurants, coffee shops, and hospitals. With a population density of 3,399.5 people per square kilometer, our neighborhood is a bustling hub of activity. The average family size in our area is 3.1, which is Above Average, and 68.8% of families have children, making it an ideal place to raise a young family.

Real Estate Context

The average value of dwellings in our neighborhood is $3,294,287, which is High compared to other areas in British Columbia. With an average owner payment of $2,457, this is a community that values stability and security. Tenants, meanwhile, can expect to pay an average of $1,822 per month. With 18.4% of the population renting, our neighborhood is a mix of owners and renters.

Language and Transportation

When it comes to language, 81.2% of the population speaks only English, while 13.1% speak both English and French. With 18.3% of the population using public transportation, 69.3% driving cars, 6% biking, and 4% walking, our neighborhood offers a range of transportation options to suit every lifestyle.

3979 W 33rd Avenue, Vancouver, BC MLS® R3067156

In conclusion, our property at

3979 W 33rd Avenue, Vancouver, BC

is a truly unique gem in the heart of Dunbar. With its excellent schools, safe community, diverse demographics, convenient transit options, and abundance of lifestyle amenities, this property is sure to appeal to families, professionals, and anyone looking for a vibrant and dynamic place to call home.

Local Info

Calculate your monthly mortgage payments

/month
Principal & Interest
Property Taxes $202
Maintenance fee 0
All figures are informational estimates by Estateblock.com; actual mortgage payments and insurance rates vary by many factors.

Cash Flow Analysis

/month
Mortgage Payment $3201
Monthly Payment $3802
Break Even Down Payment 0%
All figures are informational estimates by Estateblock.com; actual mortgage payments and insurance rates vary by many factors.

Price Evaluation Chart

Filter
Beds Home Types Square Feet Lot Size Year Built
This Home $4,098,000
Vancouver $4,469,333
Dunbar $4,409,333
Data is based on list prices of similar active listings. This representation is based in whole or in part on data generated by the Chilliwack & District Real Estate Board, Fraser Valley Real Estate Board or Real Estate Board of Greater Vancouver which assumes no responsibility for its accuracy

Listing Price Comparision

This house $1,400,000
Surrey

No comparables

Fleetwood Tynehead $1,399,000 -6.38%
Data is based on list prices of similar active listings. This representation is based in whole or in part on data generated by the Chilliwack & District Real Estate Board, Fraser Valley Real Estate Board or Real Estate Board of Greater Vancouver which assumes no responsibility for its accuracy
Dan Marusin
Dan Marusin
Renanza Realty
778-918-5990
Award-Winning REALTOR® with 11+ Years of Experience Serving Greater Vancouver

Earn Cashback

Potential Cashback for this listing if you buy with us

$0
out of $24,589
0 of 17 missions
(0.0% out of 100%)

Login to track your cashback progress

Sign up on Estateblock.com

$1,229 / 5%

Use the “Hot Deal” module on our website

$492 / 2%

Sign up for our Newsletter

$246 / 1%

Create a saved search on Estateblock.com

$492 / 2%

Book a Property Showing with us

$492 / 2%

Get a mortgage through our recommended broker

$1,721 / 7%

Use our recommended insurance provider

$492 / 2%

Use our recommended notary for closing

$492 / 2%

Sign an Exclusive Buyer’s Agency Agreement with us

$1,721 / 7%

Share Estateblock.com on social media with a short intro

$738 / 3%

Refer a friend who successfully buys or sells with us

$6,147 / 25%

Sell your home with us2

$6,147 / 25%

Leave a Public Review in Google

$1,721 / 7%

Follow us on Insta or FB and tag us in a post

$738 / 3%

Create a short video testimonial after closing

$738 / 3%

Leave a Facebook review on our page

$492 / 2%

Talk with one of our mortgage brokers

$492 / 2%

Similar nearby listings

4570 W 13th Avenue, Vancouver, BC
Open House
$4,480,000

4570 W 13th Avenue, Vancouver, BC

6 Beds
5 Baths
4149 sqft
1987 built
MLS® R3040101 , Unilife Realty Inc.
5524 Cornwall Drive, Richmond, BC
$2,499,800

5524 Cornwall Drive, Richmond, BC

6 Beds
5 Baths
3899 sqft
1992 built
MLS® R3042652 , RE/MAX Westcoast
1748 W 68th Avenue, Vancouver, BC
$4,290,000

1748 W 68th Avenue, Vancouver, BC

6 Beds
6 Baths
4294 sqft
1992 built
MLS® R3033336 , Royal Pacific Realty Corp.
11880 Aztec Street, Richmond, BC
$1,799,000

11880 Aztec Street, Richmond, BC

5 Beds
4 Baths
3303 sqft
1997 built
MLS® R3052869 , RE/MAX Masters Realty & RE/MAX Masters Realty
3513 W 40th Avenue, Vancouver, BC
$3,988,000

3513 W 40th Avenue, Vancouver, BC

7 Beds
7 Baths
4112 sqft
1989 built
MLS® R2978229 , Sutton Group - Vancouver First Realty
4118 W 13th Avenue, Vancouver, BC
Open House
$4,560,000

4118 W 13th Avenue, Vancouver, BC

7 Beds
6 Baths
4154 sqft
1988 built
MLS® R3049008 , eXp Realty
2236 W 20th Avenue, Vancouver, BC
$4,590,000

2236 W 20th Avenue, Vancouver, BC

6 Beds
7 Baths
3855 sqft
1996 built
MLS® R3050589 , Evermark Real Estate Services
6391 Bouchard Court, Richmond, BC
Open House
$2,180,000

6391 Bouchard Court, Richmond, BC

5 Beds
3 Baths
3229 sqft
1986 built
MLS® R3060798 , Royal Pacific Riverside Realty Ltd.
426 W 44th Avenue, Vancouver, BC
NEW
$4,300,000

426 W 44th Avenue, Vancouver, BC

5 Beds
4 Baths
4068 sqft
1989 built
MLS® R3050896 , FaithWilson Christies International Real Estate
5500 Westminster Highway, Richmond, BC
Open House
$1,990,000

5500 Westminster Highway, Richmond, BC

6 Beds
4 Baths
3098 sqft
1990 built
MLS® R2990021 , Nu Stream Realty Inc.

Similar Sold listings

🔒 Join or Sign In • Real estate boards need a verified account to see photos & sold data

2607 W 23rd Avenue, Vancouver, BC
Sold
$4,498,000

2607 W 23rd Avenue, Vancouver, BC

6 Beds
5 Baths
3964 sqft
1996 built
MLS® R2780773 , Parallel 49 Realty
2389 W 21st Avenue, Vancouver, BC
Sold
$3,690,000

2389 W 21st Avenue, Vancouver, BC

6 Beds
5 Baths
3570 sqft
1992 built
MLS® R2999412 , RE/MAX Crest Realty
5575 Cornwall Drive, Richmond, BC
Sold
$2,350,000

5575 Cornwall Drive, Richmond, BC

5 Beds
4 Baths
3298 sqft
1991 built
MLS® R2820538 , LeHomes Realty Premier
2728 Oliver Crescent, Vancouver, BC
Sold
$3,898,800

2728 Oliver Crescent, Vancouver, BC

7 Beds
5 Baths
3944 sqft
1990 built
MLS® R2962738 , RE/MAX Westcoast
2402 W 19th Avenue, Vancouver, BC
Sold
$3,290,000

2402 W 19th Avenue, Vancouver, BC

5 Beds
5 Baths
3659 sqft
1998 built
MLS® R2989071 , Royal Pacific Realty (Kingsway) Ltd.
1730 Island Avenue, Vancouver, BC
Sold
$2,299,000

1730 Island Avenue, Vancouver, BC

7 Beds
7 Baths
3850 sqft
1999 built
MLS® R2877804 , RE/MAX City Realty & RE/MAX City Realty & RE/MAX City Realty
2146 W 15th Avenue, Vancouver, BC
Sold
$3,500,000

2146 W 15th Avenue, Vancouver, BC

6 Beds
4 Baths
4216 sqft
1983 built
MLS® R2871184 , Heller Murch Realty
5593 Cornwall Drive, Richmond, BC
Sold
$2,490,000

5593 Cornwall Drive, Richmond, BC

5 Beds
4 Baths
3166 sqft
1992 built
MLS® R2775653 , LeHomes Realty Premier
2128 W 20th Avenue, Vancouver, BC
Sold
$3,990,000

2128 W 20th Avenue, Vancouver, BC

6 Beds
5 Baths
3654 sqft
1999 built
MLS® R2913585 , Royal Pacific Realty Corp.
2385 W 22nd Avenue, Vancouver, BC
Sold
$3,680,000

2385 W 22nd Avenue, Vancouver, BC

6 Beds
5 Baths
3682 sqft
1990 built
MLS® R2907922 , eXp Realty

Book a tour

Please complete the form. We will the arrangements and give you a call, typically within 1-2 hours. Or Call Us 778-918-5990
Thank you Your message has been sent
Go See This Home Now