3555 Quadra St, Vancouver, BC, MLS® R3063655

$2,798,000
Est. Mortgage /mo

6.7% price reduction

$2,798,000
$2,998,000
Est. Mortgage /mo
Dan Marusin
Dan Marusin
Renanza Realty
778-918-5990
Award-Winning REALTOR® with 11+ Years of Experience Serving Greater Vancouver
Go See This Home Now
5 Beds
3 Baths
2 Stories
lot 5612 sqft
3006 sqft
1973 built
Show more info
Photos
Map
Street view
Schools
Crime
Commute
Shop & Eat

3555 Quadra St, Vancouver, BC | MLS® R3063655 Property Details

6.7% price reduction

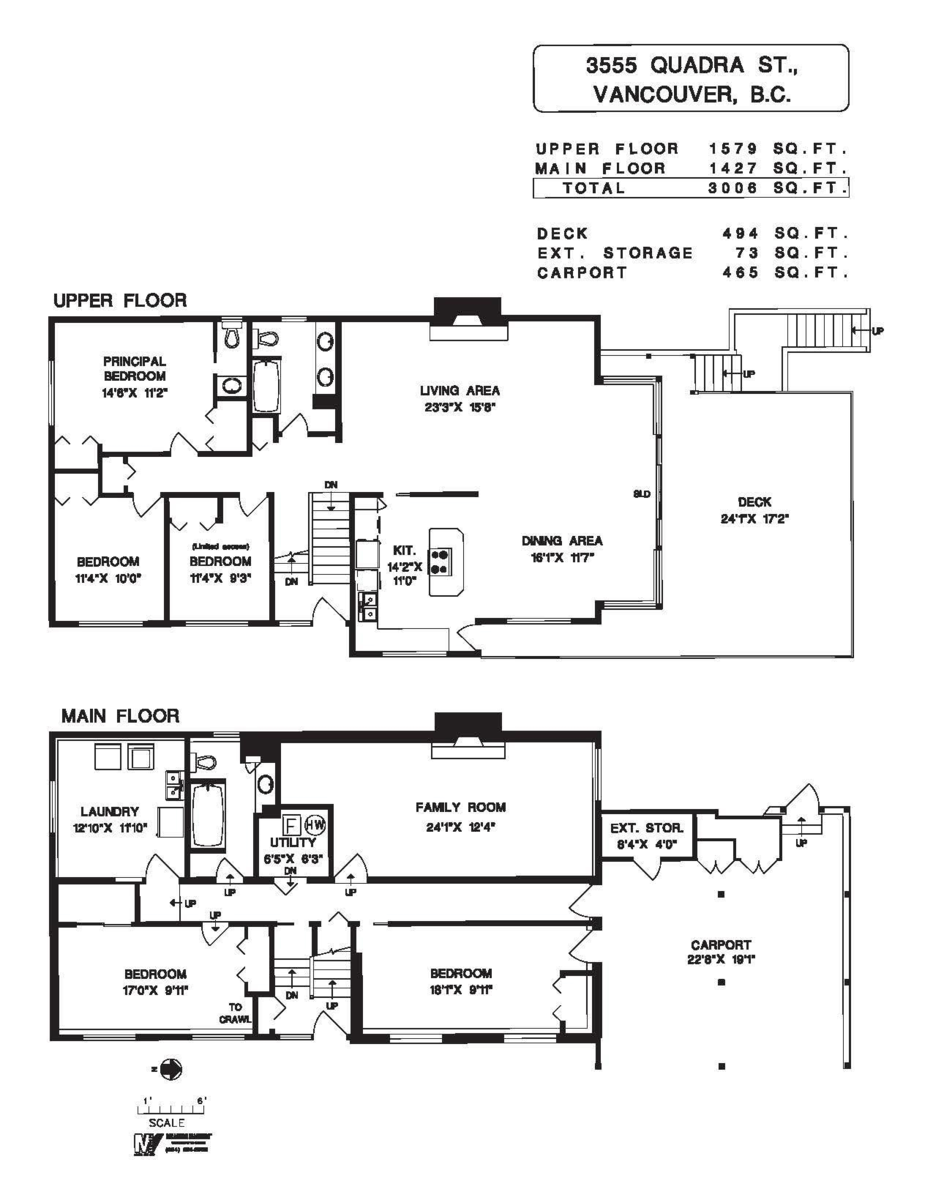
Located on a generous 46’ x 122’ sqft. corner lot in Dunbar, this bright and spacious 2-level split VIEW PROPERTY home features 5 beds & 2.5 baths across 3,006 sqft. of thoughtfully designed living space. Main floor find 2 bedrooms, spacious family room and laundry facilities. Upstairs find 3 bedrooms and an expansive open concept floor plan w/spacious principal rooms flooded with natural light. North-facing sun room opens to a substantial 494 square foot deck, perfect for outdoor entertaining and relaxation. Renovation potential abounds with this property, or it provides an ideal canvas to build your dream home from scratch. Close to Carnarvon Park, quality schools, and shops on Dunbar. A perfect blend of urban convenience and residential tranquility, make this an outstanding investment.

General Info

Price $2,798,000
Total Bedrooms 5
Total Bathrooms 2
Half Bathrooms 1
Floor Area Total (sqft) 3006
Lot Size 5612
Lot Size Depth Feet
Lot Size Frontage 46
Basement Finished
Basement Features BasementFeatures

Property Metrics

Year Built 1973
Age Of Building 52
Building Type Single Family Residence
Property Type Residential
Stories 2
Appliances Included Washer/Dryer, Dishwasher, Refrigerator, Stove
Building Features BuildingFeatures
Structures Residential Detached

Additional Details

MLS® # R3063655
Area Vancouver West
Neighbourhood Dunbar
City Vancouver
Gross Taxes $13,231.5
Ownership Type Freehold NonStrata
Maintenance Fee -
Community Features Shopping Nearby

Heating & Cooling

Fireplace 2
Heating Type Forced Air, Hot Water

Utilities

Utility Type Electricity Connected, Natural Gas Connected, Water Connected
Utility Sewer Public Sewer, Sanitary Sewer
Water (WaterSource) Public

Parking

Parking Type Carport Multiple, Front Access
Total Parking Spaces 2

🔒 Join or Sign In • Real estate boards need a verified account to see Property data

Strata Restrictions -
Rental Restrictions -
Zoning R1-1
Rental Suites None
Laundry In Unit
# of Kitchens 1
Flooring Hardwood
Foundation Concrete Perimeter
Locker -
View 1
View Description Mountain, and City
Units In Development -
Exterior Features Balcony
Sewer Public Sewer, Sanitary Sewer
Roof Wood

Property History

🔒 Join or Sign In • Real estate boards need a verified account to see Property data

Status Date Price
Show more

Listed by: WESTSIDE Tom Gradecak Realty

NOTE: This representation is based in whole or in part on data generated by the Chilliwack & District Real Estate Board, Fraser Valley Real Estate Board or Greater Vancouver REALTORS® which assumes no responsibility for its accuracy.

Neighborhood Info

Public Schools

Elementary
Lord Kitchener Elementary School
Average
0.51 km
6.9/10
Secondary
Lord Byng Secondary School
1 km

Information includes BC Government Open License data; school details change often and are offered solely as general guidance.

Private Schools

Elementary
Immaculate Conception School
1.03 km
Elementary, Secondary
St George's School
1.65 km

Closest Transit

Translink
Eastbound W 16 Ave @ Blenheim St
0.32 km
Skytrain
Skytrain @ Yaletown-Roundhouse Stn
4.69 km

Noise/ Power Lines

Road/Hwy Noise
Possible
Railway/Sky train Noise
Unlikely
Airport/Port Noise
Unlikely
Close to major Power Lines
Unlikely

Other

Agricultural Land Reserve (ALR)
Unlikely
Flood Area
Unlikely
Close to Cemeteries
Unlikely

Welcome to 3555 Quadra Street, Vancouver, BC - a Charming Community Awaits!

As your trusted realtor, I'm excited to guide you through the charming neighborhood surrounding 3555 Quadra Street, Vancouver, BC, a property listed under MLS® R3063655. This vibrant community is steeped in history, nature, and culture, offering the perfect blend of urban convenience and small-town charm.

Educational Institutions

The property is serviced by Lord Kitchener Elementary School, a reputable institution with a rating of 6.9/10. This school is located just 0.51 km from your doorstep, making it an ideal choice for families. Additionally, Lord Byng Secondary School is only 1 km away, providing a seamless transition to secondary education.

For those seeking independent education, Immaculate Conception School (Elementary, 8.8/10) and St George's School (Secondary, 10/10) are nearby, with distances of 1.03 km and 1.65 km, respectively.

Safety and Crime Rates

According to the freshest crime data from Statistics Canada (2020), the neighborhood surrounding 3555 Quadra Street, Vancouver, BC has an overall crime rate of 7,470.82, which is Average compared to other Canadian cities. This translates to a safe and secure environment for residents.

In terms of specific crime types, the neighborhood experiences:

  • Average drug crime rate (229.49) and illegal substances offenses (1,604 disturbances)
  • Above Average property crimes (35,089 disturbances) and property misconduct rate (5,020.27)
  • Below Average violent crime rate (1,311.69) and violent lawbreaking disorders (9,168)

Community and Demographics

This charming neighborhood is home to a diverse population, with:

  • 52.6% of residents holding a university certificate or degree, which is High compared to other BC neighborhoods
  • 10.2% of residents without a certificate or degree, which is Low compared to the average in BC
  • Median Household Income of $92,818, which is Above Average in comparison to the British Columbia average
  • Median personal income of $37,262, which is Above Average in comparison to the BC average
  • Unemployment rate of 5.7%, which is Below Average compared to other province neighborhoods

Transportation and Commuting

Residents of 3555 Quadra Street, Vancouver, BC enjoy easy access to public transportation, with the closest bus station, Eastbound W 16 Ave @ Blenheim St, just 0.32 km away.

The neighborhood's proximity to major highways and the SkyTrain makes commuting convenient, with 62.8% of residents using cars, 22.5% using public transport, 6.7% using bicycles, and 5.7% walking.

Lifestyle Amenities

The community surrounding 3555 Quadra Street, Vancouver, BC offers a range of lifestyle amenities, including:

  • Nearby parks, beaches, and trails for outdoor enthusiasts
  • Access to shopping malls, grocery stores, and restaurants for convenient living
  • Proximity to hospitals and medical facilities for peace of mind
  • Vibrant cultural scene, with a mix of historical and modern attractions

Real Estate Context

The average dwelling value in this neighborhood is $2,729,934, which is High compared to other areas in British Columbia. The average owner payments are also High, with $2,289 spent on average for the dwelling. Tenants, on the other hand, pay $1,693, which is High compared to other cities.

With 27.2% of the population renting, this neighborhood is Average compared to other BC cities and areas.

Language and Transportation

The neighborhood surrounding 3555 Quadra Street, Vancouver, BC has a unique language profile, with:

  • 15% of residents speaking both English and French, which is Above Average
  • 79.7% of residents speaking only English, which is Below Average
  • 5.1% of residents speaking neither English nor French, which is High compared to other BC cities

Residents also have access to a range of transportation options, with 22.5% using public transport, 62.8% using cars, 6.7% using bicycles, and 5.7% walking.

Conclusion

In conclusion, 3555 Quadra Street, Vancouver, BC, MLS® R3063655, offers a unique blend of urban convenience, small-town charm, and access to top-notch educational institutions. With a safe and secure environment, diverse community, and range of lifestyle amenities, this property is an ideal choice for families and individuals alike.

As your trusted realtor, I invite you to explore this charming neighborhood and discover the many benefits it has to offer. Contact me today to schedule

Local Info

Calculate your monthly mortgage payments

/month
Principal & Interest
Property Taxes $202
Maintenance fee 0
All figures are informational estimates by Estateblock.com; actual mortgage payments and insurance rates vary by many factors.

Cash Flow Analysis

/month
Mortgage Payment $3201
Monthly Payment $3802
Break Even Down Payment 0%
All figures are informational estimates by Estateblock.com; actual mortgage payments and insurance rates vary by many factors.

Price Evaluation Chart

Filter
Beds Home Types Square Feet Lot Size Year Built
This Home $2,798,000
Vancouver $2,466,467
Dunbar $3,399,000
Data is based on list prices of similar active listings. This representation is based in whole or in part on data generated by the Chilliwack & District Real Estate Board, Fraser Valley Real Estate Board or Real Estate Board of Greater Vancouver which assumes no responsibility for its accuracy

Listing Price Comparision

This house $1,400,000
Surrey

No comparables

Fleetwood Tynehead $1,399,000 -6.38%
Data is based on list prices of similar active listings. This representation is based in whole or in part on data generated by the Chilliwack & District Real Estate Board, Fraser Valley Real Estate Board or Real Estate Board of Greater Vancouver which assumes no responsibility for its accuracy
Dan Marusin
Dan Marusin
Renanza Realty
778-918-5990
Award-Winning REALTOR® with 11+ Years of Experience Serving Greater Vancouver

Earn Cashback

Potential Cashback for this listing if you buy with us

$0
out of $17,114
0 of 17 missions
(0.0% out of 100%)

Login to track your cashback progress

Sign up on Estateblock.com

$856 / 5%

Use the “Hot Deal” module on our website

$342 / 2%

Sign up for our Newsletter

$171 / 1%

Create a saved search on Estateblock.com

$342 / 2%

Book a Property Showing with us

$342 / 2%

Get a mortgage through our recommended broker

$1,198 / 7%

Use our recommended insurance provider

$342 / 2%

Use our recommended notary for closing

$342 / 2%

Sign an Exclusive Buyer’s Agency Agreement with us

$1,198 / 7%

Share Estateblock.com on social media with a short intro

$513 / 3%

Refer a friend who successfully buys or sells with us

$4,278 / 25%

Sell your home with us2

$4,278 / 25%

Leave a Public Review in Google

$1,198 / 7%

Follow us on Insta or FB and tag us in a post

$513 / 3%

Create a short video testimonial after closing

$513 / 3%

Leave a Facebook review on our page

$342 / 2%

Talk with one of our mortgage brokers

$342 / 2%

Similar nearby listings

1040 Jefferson Avenue, West Vancouver, BC
$2,980,000

1040 Jefferson Avenue, West Vancouver, BC

4 Beds
4 Baths
3402 sqft
1980 built
MLS® R3009243 , Royal Pacific Realty Corp.
137 W Woodstock Avenue, Vancouver, BC
$2,965,000

137 W Woodstock Avenue, Vancouver, BC

4 Beds
3 Baths
2362 sqft
1977 built
MLS® R2992552 , RE/MAX Crest Realty
2938 W 23rd Avenue, Vancouver, BC
$3,688,000

2938 W 23rd Avenue, Vancouver, BC

5 Beds
4 Baths
2785 sqft
1982 built
MLS® R3045727 , eXp Realty
1457 SE Marine Drive, Vancouver, BC
$1,598,000

1457 SE Marine Drive, Vancouver, BC

5 Beds
2 Baths
2390 sqft
1975 built
MLS® R3053413 , Royal LePage Westside Klein Group
550 E 55th Avenue, Vancouver, BC
$1,999,900

550 E 55th Avenue, Vancouver, BC

6 Beds
3 Baths
2926 sqft
1977 built
MLS® R3032955 , Homeland Realty
7808 Ross Street, Vancouver, BC
$2,098,000

7808 Ross Street, Vancouver, BC

5 Beds
2 Baths
2308 sqft
1966 built
MLS® R2974815 , Laboutique Realty
549 E 57th Avenue, Vancouver, BC
$2,200,000

549 E 57th Avenue, Vancouver, BC

6 Beds
4 Baths
3013 sqft
1979 built
MLS® R2960640 , YPA Your Property Agent & Keller Williams Ocean Realty
1149 E 63rd Avenue, Vancouver, BC
NEW
$1,800,000

1149 E 63rd Avenue, Vancouver, BC

4 Beds
3 Baths
2330 sqft
1966 built
MLS® R3062052 , RE/MAX Select Realty
5820 Earles Street, Vancouver, BC
$2,280,000

5820 Earles Street, Vancouver, BC

6 Beds
3 Baths
3060 sqft
1984 built
MLS® R3061260 , Dracco Pacific Realty
4416 W 1st Avenue, Vancouver, BC
$8,800,000

4416 W 1st Avenue, Vancouver, BC

4 Beds
6 Baths
3701 sqft
1979 built
MLS® R3053237 , Rennie & Associates Realty - Jason Soprovich

Similar Sold listings

🔒 Join or Sign In • Real estate boards need a verified account to see photos & sold data

2659 E 56th Avenue, Vancouver, BC
Sold
$1,998,000

2659 E 56th Avenue, Vancouver, BC

4 Beds
2 Baths
2451 sqft
1962 built
MLS® R2936351 , Angell, Hasman & Associates Realty Ltd. & Angell, Hasman & Associates Realty Ltd.
6139 Ross Street, Vancouver, BC
Sold
$1,999,991

6139 Ross Street, Vancouver, BC

7 Beds
4 Baths
2712 sqft
1971 built
MLS® R2907865 , Macdonald Realty
4150 Brant Street, Vancouver, BC
Sold
$1,999,000

4150 Brant Street, Vancouver, BC

5 Beds
3 Baths
2104 sqft
1958 built
MLS® R2792643 , RE/MAX Crest Realty
1020 W 17th Street, North Vancouver, BC
Sold
$1,699,000

1020 W 17th Street, North Vancouver, BC

3 Beds
2 Baths
2576 sqft
1965 built
MLS® R2842526 , Macdonald Realty
6222 Elgin Street, Vancouver, BC
Sold
$2,159,000

6222 Elgin Street, Vancouver, BC

5 Beds
3 Baths
2919 sqft
1971 built
MLS® R2994108 , RE/MAX Select Properties
1161 E 60th Avenue, Vancouver, BC
Sold
$1,899,000

1161 E 60th Avenue, Vancouver, BC

7 Beds
3 Baths
2367 sqft
1966 built
MLS® R2887624 , eXp Realty & eXp Realty
6207 Elgin Street, Vancouver, BC
Sold
$2,499,000

6207 Elgin Street, Vancouver, BC

6 Beds
3 Baths
3000 sqft
1971 built
MLS® R2851801 , RE/MAX Select Properties & RE/MAX Select Properties
1290 E 48th Avenue, Vancouver, BC
Sold
$2,198,000

1290 E 48th Avenue, Vancouver, BC

7 Beds
4 Baths
3326 sqft
1969 built
MLS® R2941222 , RE/MAX Select Properties & SRS Westside Realty
6190 Elgin Street, Vancouver, BC
Sold
$2,299,000

6190 Elgin Street, Vancouver, BC

7 Beds
4 Baths
2762 sqft
1971 built
MLS® R2842771 , Sutton Group-West Coast Realty
5528 Balaclava Street, Vancouver, BC
Sold
$3,580,000

5528 Balaclava Street, Vancouver, BC

5 Beds
5 Baths
3241 sqft
1975 built
MLS® R2800327 , Sutton Group-West Coast Realty

Book a tour

Please complete the form. We will the arrangements and give you a call, typically within 1-2 hours. Or Call Us 778-918-5990
Thank you Your message has been sent
Go See This Home Now