105 15041 Prospect Ave, White Rock, BC, MLS® R3042463

$649,900
Est. Mortgage /mo

$649,900
Est. Mortgage /mo
Dan Marusin
Dan Marusin
Renanza Realty
778-918-5990
Award-Winning REALTOR® with 11+ Years of Experience Serving Greater Vancouver
Go See This Home Now
2 Beds
2 Baths
1 Stories
$ 741.24 Maint. Fee
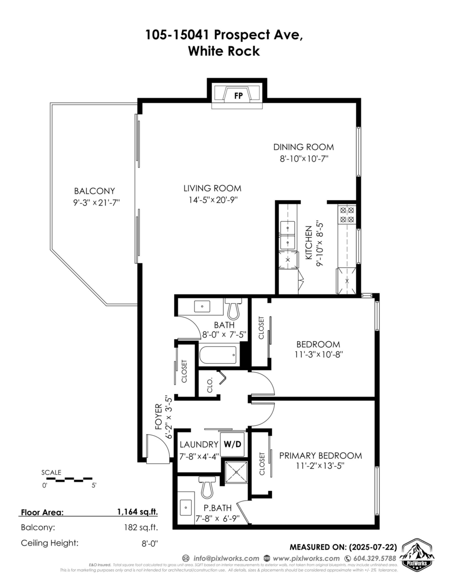
1164 sqft
1975 built
Show more info
Photos
Map
Street view
Schools
Crime
Commute
Shop & Eat

105 15041 Prospect Ave, White Rock, BC | MLS® R3042463 Property Details

Stunning Ocean View Condo at Sea Vista! Perched on White Rock’s coveted Prospect Avenue, this boutique building offers incredible ocean views. Renovated in 2025, this immaculate 2 bed, 2 bath corner unit features 1,164 sqft of bright, modern living with only one shared wall for added privacy and natural light. All new kitchens and bathrooms, and a cozy gas fireplace (gas included in fees). The 182 sq ft south-facing balcony is perfect for entertaining. Well managed building with many updates! Exterior project just completed: new glass railings, vinyl decking, fascia, and fresh paint—are fully paid by the seller. Fully rainscreened. In-suite laundry, 1 parking, free street parking, and 1 storage included. Rentals allowed (no short-term). No pets/smoking. The perfect White Rock location!

General Info

Price $649,900
Total Bedrooms 2
Total Bathrooms 2
Half Bathrooms 0
Floor Area Total (sqft) 1164
Lot Size -
Lot Size Depth Feet
Lot Size Frontage -
Basement None
Basement Features BasementFeatures

Property Metrics

Year Built 1975
Age Of Building 50
Building Type Apartment/Condo
Property Type Residential
Stories 1
Appliances Included Washer/Dryer, Dishwasher, Refrigerator, Stove, Microwave
Building Amenities Recreation Facilities, Sauna/Steam Room, Trash, Maintenance Grounds, Gas, Management, Sewer, Snow Removal, Water
Building Features BuildingFeatures
Structures Multi Family, Residential Attached

Additional Details

MLS® # R3042463
Area South Surrey White Rock
Neighbourhood White Rock
City White Rock
Gross Taxes $2,661.87
Ownership Type Freehold Strata
Maintenance Fee $741.24
Community Features Shopping Nearby
Amenities Nearby Recreation Facilities, Sauna/Steam Room, Trash, Maintenance Grounds, Gas, Management, Sewer, Snow Removal, Water

Heating & Cooling

Fireplace 1
Heating Type Electric, Natural Gas

Utilities

Utility Type Electricity Connected, Natural Gas Connected, Water Connected
Utility Sewer Community, Sanitary Sewer, Storm Sewer
Water (WaterSource) Public

Parking

Parking Type Underground, Front Access, Garage Door Opener
Total Parking Spaces 1

🔒 Join or Sign In • Real estate boards need a verified account to see Property data

Strata Restrictions Pets Not Allowed,Rentals Allwd w/Restrctns,Smoking Restrictions
Pet Restrictions No Cats, No Dogs, No
Rental Restrictions 100
Zoning RM-2
Rental Suites None
Laundry In Unit
# of Kitchens 1
Flooring Hardwood, Tile, Wall/Wall/Mixed
Foundation Concrete Perimeter
Interior Features Elevator, Storage
Locker 1
View 1
View Description Ocean view
Units In Development 15
Exterior Features Balcony
Sewer Community, Sanitary Sewer, Storm Sewer
Roof Asphalt, Torch-On

Property History

🔒 Join or Sign In • Real estate boards need a verified account to see Property data

Status Date Price
Show more

Listed by: Engel & Volkers Vancouver (Branch) & Engel & Volkers Vancouver (Branch) & Engel & Volkers Vancouver (Branch)

NOTE: This representation is based in whole or in part on data generated by the Chilliwack & District Real Estate Board, Fraser Valley Real Estate Board or Greater Vancouver REALTORS® which assumes no responsibility for its accuracy.

Neighborhood Info

Public Schools

Elementary
White Rock Elementary School
Average
0.43 km
5.5/10
Secondary
Semiahmoo Secondary School
1.23 km

Information includes BC Government Open License data; school details change often and are offered solely as general guidance.

Private Schools

Elementary, Secondary
Eaton Arrowsmith School White Rock
0.63 km
Elementary, Secondary
Eaton Arrowsmith School White Rock
0.63 km

Closest Transit

Translink
Westbound Buena Vista Ave @ Blackwood St
0.15 km
Skytrain
Skytrain @ Clayton Station ( Under Construction till 2029)
13.34 km

Noise/ Power Lines

Road/Hwy Noise
Possible
Railway/Sky train Noise
Unlikely
Airport/Port Noise
Unlikely
Close to major Power Lines
Unlikely

Other

Agricultural Land Reserve (ALR)
Unlikely
Flood Area
Unlikely
Close to Cemeteries
Unlikely

Welcome to 105 15041 Prospect Avenue, a beautiful property nestled in the heart of White Rock, BC. As your trusted realtor, I'm excited to share with you the wonderful features of this community and why it's an ideal place to call home.

Education

When it comes to education, White Rock has an excellent reputation. Your children will attend White Rock Elementary School, rated 5.5/10, which is conveniently located just 0.43 km away from our property, with MLS® R3042463. This school is a great place for kids to learn and grow, and families love this area because of its strong educational foundation.

We're also close to Semiahmoo Secondary School, rated No Rating, which is about 1.23 km away from our property. With its excellent academic programs and extracurricular activities, Semiahmoo Secondary is a great choice for high school students. Additionally, we have independent schools like Eaton Arrowsmith School White Rock, located just 0.63 km away, which offers a unique learning experience for students.

Safety

Let's talk about safety. According to the latest crime statistics from Statistics Canada (2020), the area around 105 15041 Prospect Avenue, White Rock, BC (MLS® R3042463) has an above-average crime rate compared to other Canadian cities, with 8,651.18 incidents per 100,000 population. However, it's essential to note that crime rates can fluctuate, and this neighborhood is generally considered a safe place to live.

Demographics

Our community is a diverse and vibrant place to live. According to the latest census data, 24.1% of residents hold a university certificate or degree, which is above average compared to other BC neighborhoods. On the other hand, 12.8% of the population has no certificate or degree, which is below average. The median household income is $48,192, which is lower compared to the British Columbia average. However, the median personal income is $34,629, which is average.

Transit

Getting around is easy in White Rock. The closest bus station is Westbound Buena Vista Ave @ Blackwood St, just 0.15 km away from our property with MLS® R3042463. This makes it convenient to commute to work, school, or explore the surrounding areas.

Lifestyle Amenities

Our community offers a range of lifestyle amenities that make it an attractive place to live. We have beautiful parks, beaches, trails, and dog parks nearby, as well as shopping malls, grocery stores, restaurants, and coffee shops. Eaton Arrowsmith School White Rock is also a great resource for parents and children alike.

Real Estate Context

The average dwelling value in our neighborhood is $422,524, which is above average compared to other areas in British Columbia. Average owner payments are below average, with owners spending an average of $925 per month. Tenants are paying an average of $1,063 per month, which is average compared to other cities.

Community Insights

Let's take a closer look at our community's growth and demographics. The population change between 2011 and 2016 was 1.8%, which is average compared to other regions. The population density is 8,000.4 people per square kilometer, which is high. The average family size is 2.2, which is low compared to the whole region. The percent of families with children is 25.9%, which is also low. However, the average age of the population is 60.2, which is high compared to other BC cities.

Insider Tips

As a local realtor, I can share some insider tips about our community. For example, 32.8% of the population are renters, which is above average compared to other BC cities and areas. The percent of English and French speakers is 6.1%, which is below average, while the percent of English speakers only is 93%, which is above average. Finally, 7.6% of the population use public transport, 75.6% use cars, 0.8% use bicycles, and 15.6% walk, which is a high percentage.

In conclusion, 105 15041 Prospect Avenue, White Rock, BC (MLS® R3042463) is a wonderful property in a fantastic community. With its excellent educational institutions, safe environment, diverse demographics, and convenient transit options, this is an ideal place to call home. As your trusted realtor, I invite you to explore this beautiful property and experience all that White Rock has to offer.

Local Info

Calculate your monthly mortgage payments

/month
Principal & Interest
Property Taxes $202
Maintenance fee 0
All figures are informational estimates by Estateblock.com; actual mortgage payments and insurance rates vary by many factors.

Cash Flow Analysis

/month
Mortgage Payment $3201
Monthly Payment $3802
Break Even Down Payment 0%
All figures are informational estimates by Estateblock.com; actual mortgage payments and insurance rates vary by many factors.

Price Evaluation Chart

Filter
Beds Home Types Square Feet Lot Size Year Built
This Home $649,900
White Rock $500,368
White Rock $500,368
Data is based on list prices of similar active listings. This representation is based in whole or in part on data generated by the Chilliwack & District Real Estate Board, Fraser Valley Real Estate Board or Real Estate Board of Greater Vancouver which assumes no responsibility for its accuracy

Listing Price Comparision

This house $1,400,000
Surrey

No comparables

Fleetwood Tynehead $1,399,000 -6.38%
Data is based on list prices of similar active listings. This representation is based in whole or in part on data generated by the Chilliwack & District Real Estate Board, Fraser Valley Real Estate Board or Real Estate Board of Greater Vancouver which assumes no responsibility for its accuracy
Dan Marusin
Dan Marusin
Renanza Realty
778-918-5990
Award-Winning REALTOR® with 11+ Years of Experience Serving Greater Vancouver

Earn Cashback

Potential Cashback for this listing if you buy with us

$0
out of $4,762
0 of 17 missions
(0.0% out of 100%)

Login to track your cashback progress

Sign up on Estateblock.com

$238 / 5%

Use the “Hot Deal” module on our website

$95 / 2%

Sign up for our Newsletter

$48 / 1%

Create a saved search on Estateblock.com

$95 / 2%

Book a Property Showing with us

$95 / 2%

Get a mortgage through our recommended broker

$333 / 7%

Use our recommended insurance provider

$95 / 2%

Use our recommended notary for closing

$95 / 2%

Sign an Exclusive Buyer’s Agency Agreement with us

$333 / 7%

Share Estateblock.com on social media with a short intro

$143 / 3%

Refer a friend who successfully buys or sells with us

$1,190 / 25%

Sell your home with us2

$1,190 / 25%

Leave a Public Review in Google

$333 / 7%

Follow us on Insta or FB and tag us in a post

$143 / 3%

Create a short video testimonial after closing

$143 / 3%

Leave a Facebook review on our page

$95 / 2%

Talk with one of our mortgage brokers

$95 / 2%

Similar nearby listings

103 1351 Martin Street, White Rock, BC
$565,000

103 1351 Martin Street, White Rock, BC

1 Beds
1 Baths
969 sqft
1977 built
MLS® R3023430 , Homelife Benchmark Realty Corp.
303 1341 George, Street, White Rock, BC
$398,000

303 1341 George, Street, White Rock, BC

1 Beds
1 Baths
726 sqft
1981 built
MLS® R3032755 , Coldwell Banker Executives Realty
3 15989 Marine Drive, White Rock, BC
$569,900

3 15989 Marine Drive, White Rock, BC

1 Beds
1 Baths
741 sqft
1983 built
MLS® R3040970 , Macdonald Realty (Surrey/152)
302 1442 Blackwood Street, White Rock, BC
$315,000

302 1442 Blackwood Street, White Rock, BC

1 Beds
1 Baths
624 sqft
1974 built
MLS® R3049564 , Sutton Group-West Coast Realty
203 15265 Roper Avenue, White Rock, BC
$479,800

203 15265 Roper Avenue, White Rock, BC

1 Beds
1 Baths
688 sqft
1974 built
MLS® R3007326 , Royal LePage West Real Estate Services
505 1220 Fir Street, White Rock, BC
NEW
$699,000

505 1220 Fir Street, White Rock, BC

2 Beds
2 Baths
1168 sqft
1987 built
MLS® R3068676 , RE/MAX Colonial Pacific Realty
110 15300 17 Avenue, Surrey, BC
$599,900

110 15300 17 Avenue, Surrey, BC

2 Beds
2 Baths
1405 sqft
1987 built
MLS® R3002303 , Nu Stream Realty Inc. & Nu Stream Realty Inc.
111 1521 Blackwood Street, White Rock, BC
$495,000

111 1521 Blackwood Street, White Rock, BC

2 Beds
2 Baths
1008 sqft
1981 built
MLS® R3059825 , Sotheby's International Realty Canada & Sotheby's International Realty Canada
205 1531 Merklin Street, White Rock, BC
Open House
$439,900

205 1531 Merklin Street, White Rock, BC

2 Beds
2 Baths
1126 sqft
1981 built
MLS® R3062384 , The Agency White Rock
204 1458 Blackwood Street, White Rock, BC
$469,900

204 1458 Blackwood Street, White Rock, BC

2 Beds
2 Baths
1241 sqft
1982 built
MLS® R3036205 , Homelife Benchmark Realty Corp.

Similar Sold listings

🔒 Join or Sign In • Real estate boards need a verified account to see photos & sold data

307 1273 Merklin Street, White Rock, BC
Sold
$549,900

307 1273 Merklin Street, White Rock, BC

2 Beds
2 Baths
1008 sqft
1988 built
MLS® R3037455 , RE/MAX Colonial Pacific Realty
301 1473 Blackwood Street, White Rock, BC
Sold
$624,900

301 1473 Blackwood Street, White Rock, BC

2 Beds
2 Baths
1024 sqft
1984 built
MLS® R2977431 , RE/MAX Treeland Realty
205 1521 George Street, White Rock, BC
Sold
$489,000

205 1521 George Street, White Rock, BC

1 Beds
1 Baths
896 sqft
1977 built
MLS® R2844121 , Coldwell Banker Marquise Realty
203 1355 Fir Street, White Rock, BC
Sold
$415,000

203 1355 Fir Street, White Rock, BC

1 Beds
1 Baths
844 sqft
1970 built
MLS® R2936281 , Hugh & McKinnon Realty Ltd.
204 1381 Martin Street, White Rock, BC
Sold
$448,800

204 1381 Martin Street, White Rock, BC

1 Beds
1 Baths
910 sqft
1976 built
MLS® R2851640 , Sutton Group Seafair Realty
110 15255 18 Avenue, Surrey, BC
Sold
$629,000

110 15255 18 Avenue, Surrey, BC

2 Beds
2 Baths
1401 sqft
1988 built
MLS® R2889469 , Macdonald Realty (Surrey/152)
3A 1400 George Street, White Rock, BC
Sold
$659,000

3A 1400 George Street, White Rock, BC

2 Beds
2 Baths
1182 sqft
1990 built
MLS® R2813082 , Sutton Premier Realty
201 1467 Martin Street, White Rock, BC
Sold
$568,000

201 1467 Martin Street, White Rock, BC

2 Beds
2 Baths
1065 sqft
1986 built
MLS® R2845154 , Hugh & McKinnon Realty Ltd.
211 1341 George Street, White Rock, BC
Sold
$399,000

211 1341 George Street, White Rock, BC

1 Beds
1 Baths
771 sqft
1981 built
MLS® R2964316 , Hugh & McKinnon Realty Ltd. & Hugh & McKinnon Realty Ltd.
117 1561 Vidal Street, White Rock, BC
Sold
$520,000

117 1561 Vidal Street, White Rock, BC

2 Beds
2 Baths
993 sqft
1973 built
MLS® R2813472 , Keller Williams Realty VanCentral

Book a tour

Please complete the form. We will the arrangements and give you a call, typically within 1-2 hours. Or Call Us 778-918-5990
Thank you Your message has been sent
Go See This Home Now