Huge potential!!! This well built & maintained 2 story VIEW HOME is a blank canvas waiting for your finishing touches. The 1615 sq. ft. upstairs has 3 bedrooms & 2 baths with 1383 sq. ft. in the unfinished basement. High end in 1973 and ready for an upgrade. Upstairs flooring has been removed anticipating a renovation. The large 90’ x 110’ property is in the RM-3 Upper Gibsons Medium Density Zone, which allows for up to 9 units if you wish to re-develop the site. Lovely mature gardens with downstairs paving stone patio & large upper deck above the carport. Conveniently located on a quiet street equally distant between Upper & Lower Gibsons. Great investment value whether you wish to make this your single family home, a duplex or more.
General Info
Price
$999,500
Total Bedrooms
3
Total Bathrooms
2
Half Bathrooms
1
Floor Area Total (sqft)
1615
Lot Size
9919
Lot Size Depth
Feet
Lot Size Frontage
90
Basement
None
Basement Features
BasementFeatures
Property Metrics
Year Built
1973
Age Of Building
53
Building Type
Single Family Residence
Property Type
Residential
Stories
2
Building Features
BuildingFeatures
Structures
Residential Detached
Additional Details
MLS® #
R3092459
Area
Sunshine Coast
Neighbourhood
Gibsons & Area
City
Gibsons
Gross Taxes
$6,084.31
Ownership Type
Freehold NonStrata
Maintenance Fee
-
Community Features
Shopping Nearby
Fixtures Included
-
Heating & Cooling
Fireplace
2
Heating Type
Baseboard, Natural Gas, Radiant
Utilities
Utility Type
Electricity Connected, Natural Gas Connected, Water Connected
Utility Sewer
Public Sewer, Sanitary Sewer
Water (WaterSource)
Public
Parking
Parking Type
Carport Single, Front Access
Total Parking Spaces
3
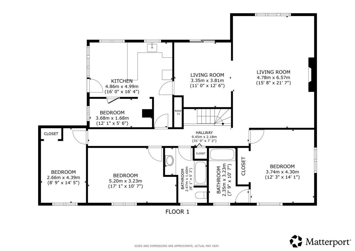
Rooms
Floor
Type
Dimensions
Main Level
Kitchen
10' x 10' ft
Main Level
Eating Area
10' x 10' ft
Main Level
Living Room
22' x 22' ft
Main Level
Dining Room
12'6' x 12'6' ft
Main Level
Primary Bedroom
14' x 14' ft
Main Level
Bedroom
15' x 15' ft
Main Level
Bedroom
14' x 14' ft
Main Level
Laundry
8' x 8' ft
Bathrooms
Floor
Ensuite
Pieces
Main Level
No
#4
Main Level
Yes
#4
Below
No
#1
Listed by: RE/MAX City Realty & RE/MAX City Realty
NOTE: This representation is based in whole or in part on data generated by the Chilliwack & District Real Estate Board, Fraser Valley Real Estate Board or Greater Vancouver REALTORS® which assumes no responsibility for its accuracy.
Neighborhood & Transit Info
Public Schools
Secondary
Chatelech Secondary School
20.22 km
Elementary
École du Pacifique
19.91 km
Elementary
École du Pacifique
19.91 km
Information includes BC Government Open License data; school details change often and are offered solely as general guidance.
Private Schools
Elementary, Secondary
Mulgrave School
23.67 km
Elementary, Secondary
Mulgrave School
23.67 km
Closest Transit
Bus Stop
Gibsons 740 block (WB)
0.15 km
Skytrain
Skytrain @ Burrard Stn
31.24 km
Crime Rate
Total Crime Rate
Below Average
Violent Crime Rate
Below Average
Property Crime Rate
Below Average
Demographics
Post-Secondary Education
24.2%
No Certificate/Degree
13.4%
Owner Occupied
51.3%
Employment Rate
43.9%
Noise/ Power Lines
Road/Hwy Noise
Possible
Railway/Sky train Noise
Unlikely
Airport/Port Noise
Unlikely
Close to major Power Lines
Unlikely
Other
Agricultural Land Reserve (ALR)
Unlikely
Flood Area
Unlikely
Close to Cemeteries
Unlikely
Local Info
Highlights
Restaurants
Groceries
Nightlife
Cafes
Shopping
Arts & Entertainment
Estimated Mortgage Calculator
/month
Principal & Interest
Property Taxes$202
Maintenance fee0
All figures are informational estimates by Estateblock.com; actual mortgage payments and insurance rates vary by many factors.
Listing data last synced:
Estimated Cashflow Calculator
/month
Mortgage Payment$3201
Monthly Payment$3802
Break Even Down Payment0%
All figures are informational estimates by Estateblock.com; actual mortgage payments and insurance rates vary by many factors.
Home Price Evaluation Chart
Filter
This Home
$999,500
Gibsons
Loading...
Gibsons & Area
Loading...
Data is based on list prices of similar active listings. This representation is based in whole or in part on data generated by the Chilliwack & District Real Estate Board, Fraser Valley Real Estate Board or Real Estate Board of Greater Vancouver which assumes no responsibility for its accuracy
Property FAQs
What are the closest top-rated schools to 631 Wyngaert Road, Gibsons, BC?
The closest top-rated schools are Chatelech Secondary School and École du Pacifique.
Is 631 Wyngaert Road, Gibsons, BC in a flood zone?
Flood risk status: No.
What is the estimated monthly mortgage and strata fee for 631 Wyngaert Road, Gibsons, BC?
With a standard down payment, the estimated monthly mortgage is approximately $5,997.
Award-Winning REALTOR® with 11+ Years of Experience Serving Greater Vancouver
Claim Your Rebate
Attach at least one supporting item (image, video, document, or URL) to verify your rebate action.
This helps us confirm your eligibility and process your rebate quickly.