Adorable Farmhouse Vibes in a Family-Friendly Neighbourhood! Welcome to this sweet 3-bedroom + den, 1-bathroom gem in the Cedar Grove Elementary catchment! Tucked onto a sunny corner lot, this two-story home is full of charm—from the vaulted wood ceilings in the dining room to the classic white farmhouse sink and butcher block counters that give the kitchen that perfect cozy feel with a bright, airy vibe, the home also features newer stainless steel appliances, updated windows, a newer front door and sliding glass door, and easy-care laminate flooring. Step outside to a spacious, fully usable yard with mature landscaping and a dreamy wraparound sundeck—just right for morning coffee or sunset BBQs
General Info
Price
$746,000
Total Bedrooms
3
Total Bathrooms
1
Half Bathrooms
0
Floor Area Total (sqft)
1299
Lot Size
7841
Lot Size Depth
Feet
Lot Size Frontage
50
Basement
None
Basement Features
BasementFeatures
Property Metrics
Year Built
1964
Age Of Building
62
Building Type
Single Family Residence
Property Type
Residential
Stories
2
Building Features
BuildingFeatures
Structures
Residential Detached
Additional Details
MLS® #
R3094655
Area
Sunshine Coast
Neighbourhood
Gibsons & Area
City
Gibsons
Gross Taxes
$2,628.31
Ownership Type
Freehold NonStrata
Maintenance Fee
-
Fixtures Included
-
Heating & Cooling
Fireplace
-
Heating Type
Baseboard, Electric
Utilities
Utility Type
Electricity Connected, Water Connected
Utility Sewer
Septic Tank
Water (WaterSource)
Public
Parking
Parking Type
Carport Single, Open, Concrete
Total Parking Spaces
4
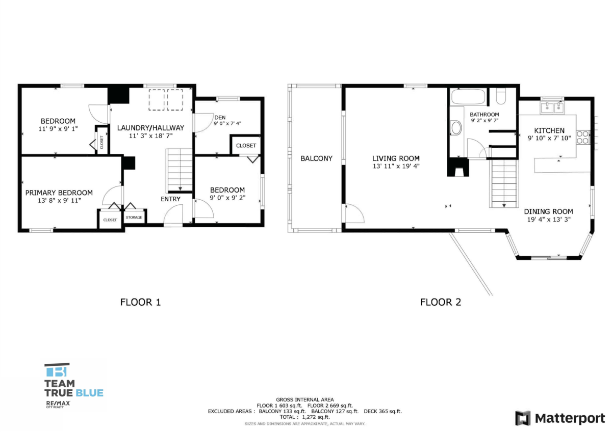
Rooms
Floor
Type
Dimensions
Main Level
Kitchen
11'10 x 11'10 ft
Main Level
Living Room
13'1 x 13'1 ft
Main Level
Dining Room
9'9 x 9'9 ft
Main Level
Porch (enclosed)
3'4 x 3'4 ft
Below
Foyer
9'5 x 9'5 ft
Below
Den
8'9 x 8'9 ft
Below
Primary Bedroom
13'7 x 13'7 ft
Below
Bedroom
8'9 x 8'9 ft
Below
Bedroom
11'7 x 11'7 ft
Below
Laundry
11'4 x 11'4 ft
Bathrooms
Floor
Ensuite
Pieces
Above Level
No
#4
Listed by: RE/MAX City Realty & RE/MAX City Realty
NOTE: This representation is based in whole or in part on data generated by the Chilliwack & District Real Estate Board, Fraser Valley Real Estate Board or Greater Vancouver REALTORS® which assumes no responsibility for its accuracy.
Neighborhood & Transit Info
Public Schools
Secondary
Chatelech Secondary School
19.59 km
Elementary
École du Pacifique
19.29 km
Elementary
École du Pacifique
19.29 km
Information includes BC Government Open License data; school details change often and are offered solely as general guidance.
Private Schools
Elementary, Secondary
Mulgrave School
24.7 km
Elementary, Secondary
Mulgrave School
24.7 km
Closest Transit
Bus Stop
Pratt at Chaster (SB)
0.1 km
Skytrain
Skytrain @ Burrard Stn
31.92 km
Crime Rate
Total Crime Rate
Below Average
Violent Crime Rate
Below Average
Property Crime Rate
Below Average
Demographics
Post-Secondary Education
17.6%
No Certificate/Degree
17.1%
Owner Occupied
56.1%
Employment Rate
49.1%
Noise/ Power Lines
Road/Hwy Noise
Possible
Railway/Sky train Noise
Unlikely
Airport/Port Noise
Unlikely
Close to major Power Lines
Unlikely
Other
Agricultural Land Reserve (ALR)
Unlikely
Flood Area
Unlikely
Close to Cemeteries
Unlikely
Local Info
Highlights
Restaurants
Groceries
Nightlife
Cafes
Shopping
Arts & Entertainment
Estimated Mortgage Calculator
/month
Principal & Interest
Property Taxes$202
Maintenance fee0
All figures are informational estimates by Estateblock.com; actual mortgage payments and insurance rates vary by many factors.
Listing data last synced:
Estimated Cashflow Calculator
/month
Mortgage Payment$3201
Monthly Payment$3802
Break Even Down Payment0%
All figures are informational estimates by Estateblock.com; actual mortgage payments and insurance rates vary by many factors.
Home Price Evaluation Chart
Filter
This Home
$746,000
Gibsons
Loading...
Gibsons & Area
Loading...
Data is based on list prices of similar active listings. This representation is based in whole or in part on data generated by the Chilliwack & District Real Estate Board, Fraser Valley Real Estate Board or Real Estate Board of Greater Vancouver which assumes no responsibility for its accuracy
Property FAQs
What are the closest top-rated schools to 226 Pratt Road, Gibsons, BC?
The closest top-rated schools are Chatelech Secondary School and École du Pacifique.
Is 226 Pratt Road, Gibsons, BC in a flood zone?
Flood risk status: No.
What is the estimated monthly mortgage and strata fee for 226 Pratt Road, Gibsons, BC?
With a standard down payment, the estimated monthly mortgage is approximately $4,476.
Award-Winning REALTOR® with 11+ Years of Experience Serving Greater Vancouver
Claim Your Rebate
Attach at least one supporting item (image, video, document, or URL) to verify your rebate action.
This helps us confirm your eligibility and process your rebate quickly.