6714 Nicholson Rd, Delta, BC

$1,199,000
Est. Mortgage /mo

| MLS® R3093603

NEW 20.1% cheaper than comparables

$1,199,000
Est. Mortgage /mo
Dan Marusin
Dan Marusin
Renanza Realty
778-918-5990
Award-Winning REALTOR® with 11+ Years of Experience Serving Greater Vancouver
Go See This Home Now
3 Beds
3 Baths
3 Stories
lot 6017 sqft
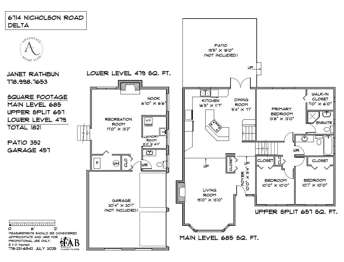
1821 sqft
1979 built
Show more info
Photos
Map
Street view
Schools
Crime
Commute
Shop & Eat

Property Details & Specs

20.1% cheaper than comparables

Beautifully updated 3 bdrm, 2.5 bath home on a desirable corner lot in Sunshine Hills. Bright kitchen w/ large island, gas stove, abundant cabinetry & excellent natural light. Open design connects kitchen, dining & living areas, ideal for everyday living & gatherings. Hardwood flooring throughout dining, living & upper level. Spacious primary easily fits a king bed & features WI closet + 3 pc ensuite. Private, fully fenced backyard offers plenty of space to enjoy. Lower level provides a generous flex area — perfect for media room, office, gym or family room, with room for multiple uses. Large yard & convenient driveway access off Staples Cres. Walk to Cougar Canyon Elem & Seaquam Sec (IB), shops, transit & Watershed Park. Easy commuter access.

General Info

Price $1,199,000
Total Bedrooms 3
Total Bathrooms 2
Half Bathrooms 1
Floor Area Total (sqft) 1821
Lot Size 6017
Lot Size Depth Feet
Lot Size Frontage 60
Basement Crawl Space
Basement Features BasementFeatures

Property Metrics

Year Built 1979
Age Of Building 47
Building Type Single Family Residence
Property Type Residential
Architecture Style 3 Level Split
Stories 3
Appliances Included Washer/Dryer, Dishwasher, Refrigerator, Stove
Building Features BuildingFeatures
Structures Residential Detached

Additional Details

MLS® # R3093603
Area N. Delta
Neighbourhood Sunshine Hills Woods
City Delta
Gross Taxes $4,751.35
Ownership Type Freehold NonStrata
Maintenance Fee -
Community Features Shopping Nearby

Heating & Cooling

Fireplace 2
Heating Type Forced Air, Natural Gas

Utilities

Utility Type Community
Utility Sewer Public Sewer
Water (WaterSource) Public

Parking

Parking Type Garage Double, Side Access
Total Parking Spaces 2
Listed by: RE/MAX Performance Realty & RE/MAX Performance Realty

NOTE: This representation is based in whole or in part on data generated by the Chilliwack & District Real Estate Board, Fraser Valley Real Estate Board or Greater Vancouver REALTORS® which assumes no responsibility for its accuracy.

Neighborhood & Transit Info

Public Schools

Secondary
Seaquam Secondary School
0.6 km
Elementary
Cougar Canyon Elementary School
Average
0.5 km
6/10

Information includes BC Government Open License data; school details change often and are offered solely as general guidance.

Private Schools

Elementary
St. Bernadette
2.68 km
Elementary, Secondary
Regent Christian Academy
6.63 km

Closest Transit

Bus Stop
Southbound Scott Rd @ Wade Rd
0.32 km
Skytrain
Skytrain @ King George Stn
7.37 km

Crime Rate

Total Crime Rate
Below Average
Violent Crime Rate
Low
Property Crime Rate
Below Average

Demographics

Post-Secondary Education
28.3%
No Certificate/Degree
15.2%
Owner Occupied
59.2%
Employment Rate
67.3%

Noise/ Power Lines

Road/Hwy Noise
Possible
Railway/Sky train Noise
Unlikely
Airport/Port Noise
Unlikely
Close to major Power Lines
Unlikely

Other

Agricultural Land Reserve (ALR)
Unlikely
Flood Area
Unlikely
Close to Cemeteries
Unlikely

Local Info

Estimated Mortgage Calculator

/month
Principal & Interest
Property Taxes $202
Maintenance fee 0
All figures are informational estimates by Estateblock.com; actual mortgage payments and insurance rates vary by many factors.
Listing data last synced:

Estimated Cashflow Calculator

/month
Mortgage Payment $3201
Monthly Payment $3802
Break Even Down Payment 0%
All figures are informational estimates by Estateblock.com; actual mortgage payments and insurance rates vary by many factors.

Home Price Evaluation Chart

Filter
Beds Home Types Square Feet Lot Size Year Built
This Home $1,199,000
Delta Loading...
Sunshine Hills Woods Loading...
Data is based on list prices of similar active listings. This representation is based in whole or in part on data generated by the Chilliwack & District Real Estate Board, Fraser Valley Real Estate Board or Real Estate Board of Greater Vancouver which assumes no responsibility for its accuracy

Property FAQs

What are the closest top-rated schools to 6714 Nicholson Road, Delta, BC?

Is 6714 Nicholson Road, Delta, BC in a flood zone?

What is the estimated monthly mortgage and strata fee for 6714 Nicholson Road, Delta, BC?

Dan Marusin
Dan Marusin
Renanza Realty
778-918-5990
Award-Winning REALTOR® with 11+ Years of Experience Serving Greater Vancouver

Buy with us & save on this property

Similar nearby listings

11766 Kerr Bay, Delta, BC
$1,229,999

11766 Kerr Bay, Delta, BC

3 Beds
3 Baths
2421 sqft
1971 built
MLS® R3061096 , RE/MAX Performance Realty & Century 21 Coastal Realty Ltd.
11774 Kerr Bay, Delta, BC
$1,250,000

11774 Kerr Bay, Delta, BC

3 Beds
3 Baths
2259 sqft
1971 built
MLS® R3075018 , RE/MAX Performance Realty & RE/MAX Performance Realty
11662 89a Avenue, Delta, BC
$1,349,000

11662 89a Avenue, Delta, BC

3 Beds
3 Baths
2052 sqft
1976 built
MLS® R3032123 , RE/MAX Performance Realty & RE/MAX Performance Realty
8082 112 Street, Delta, BC
$1,199,900

8082 112 Street, Delta, BC

5 Beds
3 Baths
1875 sqft
1968 built
MLS® R3079628 , Macdonald Realty (Delta) & Macdonald Realty (Delta)
8076 139a Street, Surrey, BC
$1,349,900

8076 139a Street, Surrey, BC

5 Beds
4 Baths
2068 sqft
1983 built
MLS® R3091392 , Sutton Group-Alliance R.E.S. & Sutton Group-Alliance R.E.S. & Sutton Group-Alliance R.E.S.

Book a tour

Please complete the form. We will the arrangements and give you a call, typically within 1-2 hours. Or Call Us 778-918-5990
Thank you Your message has been sent
Go See This Home Now