8842 University Cres, Burnaby, BC

$968,000
Est. Mortgage /mo

| MLS® R3095956

NEW OPEN HOUSE

$968,000
Est. Mortgage /mo
Dan Marusin
Dan Marusin
Renanza Realty
778-918-5990
Award-Winning REALTOR® with 11+ Years of Experience Serving Greater Vancouver
Go See This Home Now
3 Beds
3 Baths
2 Stories
$ 780 Maint. Fee
1243 sqft
2019 built
Show more info
Photos
Map
Street view
Schools
Crime
Commute
Shop & Eat

Property Details & Specs

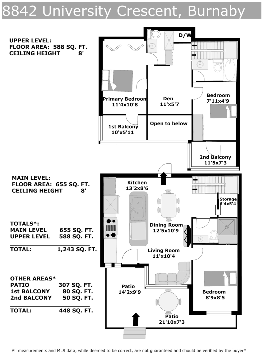
Spectacular CONCRETE 3 Bedrooms + Den +3 bathrooms Townhouse at the PEAK condo at SFU ( in 2 levels with 1243 SQ.FT)+ 1 parking and 1 storage. Beautiful South-facing townhouse with stunning private patio, directly accessible from the street. Incredible layout-19' ceilings over the main living area, opening to a loft/den area on the 2nd flr. Open concept kitchen (wood panelled cabinets, gas range) and spacious dining and living rooms with 9' ceilings throughout. All bedrooms offer excellent privacy (no shared walls), and the upper 2 bedrooms have large 2 balconies. Outdoor space is 2nd to none: over 300 sf of sunny patio area off the main level, with privacy from the surrounding trees & gardens. Truly an incredible family home. Strata fee includes radiant heating, hot water, and facilities.

Open houses

07 Mar, 2026 (02:00 PM to 04:00 PM)

08 Mar, 2026 (01:00 PM to 03:00 PM)

General Info

Price $968,000
Total Bedrooms 3
Total Bathrooms 3
Half Bathrooms 0
Floor Area Total (sqft) 1243
Lot Size -
Lot Size Depth Feet
Lot Size Frontage 0
Basement None
Basement Features BasementFeatures

Property Metrics

Year Built 2019
Age Of Building 7
Building Type Townhouse
Property Type Residential
Stories 2
Appliances Included Washer/Dryer, Dishwasher, Refrigerator, Stove
Building Amenities Clubhouse, Exercise Centre, Recreation Facilities, Caretaker, Trash, Maintenance Grounds, Heat, Hot Water, Management
Building Features BuildingFeatures
Structures Residential Attached

Additional Details

MLS® # R3095956
Area Burnaby North
Neighbourhood Simon Fraser Univer.
City Burnaby
Gross Taxes $2,663.88
Ownership Type Leasehold prepaid-Strata
Maintenance Fee $780
Community Features Shopping Nearby
Amenities Nearby Clubhouse, Exercise Centre, Recreation Facilities, Caretaker, Trash, Maintenance Grounds, Heat, Hot Water, Management

Heating & Cooling

Fireplace 0
Heating Type Baseboard, Hot Water

Utilities

Utility Type Community
Utility Sewer Public Sewer
Water (WaterSource) Public

Parking

Parking Type Underground
Total Parking Spaces 1
Listed by: One Percent Realty Ltd.

NOTE: This representation is based in whole or in part on data generated by the Chilliwack & District Real Estate Board, Fraser Valley Real Estate Board or Greater Vancouver REALTORS® which assumes no responsibility for its accuracy.

Neighborhood & Transit Info

Public Schools

Elementary
University Highlands Elementary School
Above Average
0.27 km
7.1/10
Secondary
Burnaby Mountain Secondary School
2.84 km

Information includes BC Government Open License data; school details change often and are offered solely as general guidance.

Private Schools

Elementary, Secondary
Mediated Learning Academy
1.97 km
Elementary, Secondary
Mediated Learning Academy
1.97 km

Closest Transit

Bus Stop
SFU Transit Exchange @ Bay 4
0.32 km
Skytrain
Skytrain @ Burquitlam Station
2.50 km

Crime Rate

Total Crime Rate
Below Average
Violent Crime Rate
Low
Property Crime Rate
Average

Demographics

Post-Secondary Education
36.8%
No Certificate/Degree
7.4%
Owner Occupied
63%
Employment Rate
67.6%

Noise/ Power Lines

Road/Hwy Noise
Unlikely
Railway/Sky train Noise
Unlikely
Airport/Port Noise
Unlikely
Close to major Power Lines
Unlikely

Other

Agricultural Land Reserve (ALR)
Unlikely
Flood Area
Unlikely
Close to Cemeteries
Unlikely

Local Info

Estimated Mortgage Calculator

/month
Principal & Interest
Property Taxes $202
Maintenance fee 0
All figures are informational estimates by Estateblock.com; actual mortgage payments and insurance rates vary by many factors.
Listing data last synced:

Estimated Cashflow Calculator

/month
Mortgage Payment $3201
Monthly Payment $3802
Break Even Down Payment 0%
All figures are informational estimates by Estateblock.com; actual mortgage payments and insurance rates vary by many factors.

Home Price Evaluation Chart

Filter
Beds Home Types Square Feet Lot Size Year Built
This Home $968,000
Burnaby Loading...
Simon Fraser Univer. Loading...
Data is based on list prices of similar active listings. This representation is based in whole or in part on data generated by the Chilliwack & District Real Estate Board, Fraser Valley Real Estate Board or Real Estate Board of Greater Vancouver which assumes no responsibility for its accuracy

Property FAQs

What are the closest top-rated schools to 8842 University Crescent, Burnaby, BC?

Is 8842 University Crescent, Burnaby, BC in a flood zone?

What is the estimated monthly mortgage and strata fee for 8842 University Crescent, Burnaby, BC?

Dan Marusin
Dan Marusin
Renanza Realty
778-918-5990
Award-Winning REALTOR® with 11+ Years of Experience Serving Greater Vancouver

Buy with us & save on this property

Similar nearby listings

Book a tour

Please complete the form. We will the arrangements and give you a call, typically within 1-2 hours. Or Call Us 778-918-5990
Thank you Your message has been sent
Go See This Home Now